Haus H
Einfamilienhaus
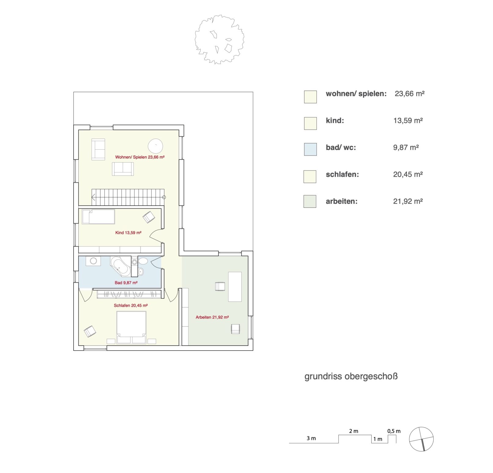
Der Baukörper orientiert sich in Querrichtung des Grundstücks gemäß des alten Bestandes. Im Südwesten öffnet sich das Haus und bildet eine Terasse die eine direkte Verbindung zum Garten herstellt. Im Erdgeschoß befinden sich neben der offenen Küche und dem Wohnzimmer, die sich zur Terasse orientieren, auch ein Gästezimmer an der Ostseite sowie ein Arbeitsbereich. Durch großflächige Fenster zum Garten wird ein direkter Bezug zur Natur hergestellt. Ein außenliegender Sonnenschutz in Form von Holzlamellen in warmen, natürlichen Farben schützt vor zu starker Sonneneinstrahlung und wahrt gleichzeitig die Privatspähre. Das Aussehen der Fassade wird je nach Öffnungszustand der Schiebeelemente dadurch immer variieren. Im Obergeschoß gibt es einen Wohn- und Spielbereich, das Kinderzimmer, das Schlaf- zimmer sowie ein Arbeitszimmer. Der Grundriß ist so geplant, das er bei der Pla- nung flexibel erweiterbar ist, gemäß der individuellen Wünsche und Möglichkeiten. Folgende Größen sind möglich: 192,88 m² / 149,04 m² / 120, 98 m²
- Projekt: Haus Helmboldt
- Jahr: 2007
- LP: 1-3
- Standort: Chemnitz, Deutschland
- Fläche: 193 m²



